Neshotah Pavilion Q&A
The City of Two Rivers is exploring practical, cost-conscious improvements to the Neshotah Beach concession area. We are focused on ADA accessibility, functionality, and enhancing the beach experience for residents and visitors. We’ve put together a clear, easy-to-read FAQ to explain what’s being considered, what’s not, and how this project could be funded.
Frequently Asked Questions
No. This idea was considered. Feedback from the City Council and the community has shown that this option is not desired.
Yes, an interior renovation of the bathrooms, concession stand, and picnic shelter are being considered. See proposed floor plan changes to the building below.
The renovation would primarily include improvements to the restrooms. It will include all the following.
- Reconfiguration of restrooms to increase the number of toilets in both restrooms and reduce waiting times
- Creation of fully ADA-accessible restrooms, which do not currently exist in the building
- Addition of family-style restrooms and changing rooms
- Separate exterior-access restrooms to allow for year-round use by park visitors
- Replacement of all fixtures with modern, energy-efficient plumbing and appliances
- Three-season upgrades to the attached picnic shelter, including roll-up screens and radiant electric heaters
- Removal of non-load-bearing interior walls to create additional storage and counter space for the concession stand
- Completion of required health code updates to improve concession stand functionality
A full interior renovation is being considered because the Neshotah Beach building, originally constructed in 1955, is structurally sound and well positioned to continue serving the community and visitors for another 70 years if modernized. The renovation would significantly improve restroom capacity, particularly addressing long wait times in the women’s restrooms, and replace outdated open changing areas with more private, functional spaces. Interior showers are not planned but additional beach style exterior showers are. The project would create year-round restroom access for park users, an important amenity beyond the summer beach season. In addition, certain health code and concession upgrades are required regardless, and a comprehensive renovation allows those improvements to be done efficiently while also increasing space and functionality. The project would extend the usable season of the attached picnic shelter, creating new rental and revenue opportunities. Because the building’s interior walls are non-load bearing, the space can be reconfigured to better meet current and future needs without compromising the integrity and historic charm of the structure.
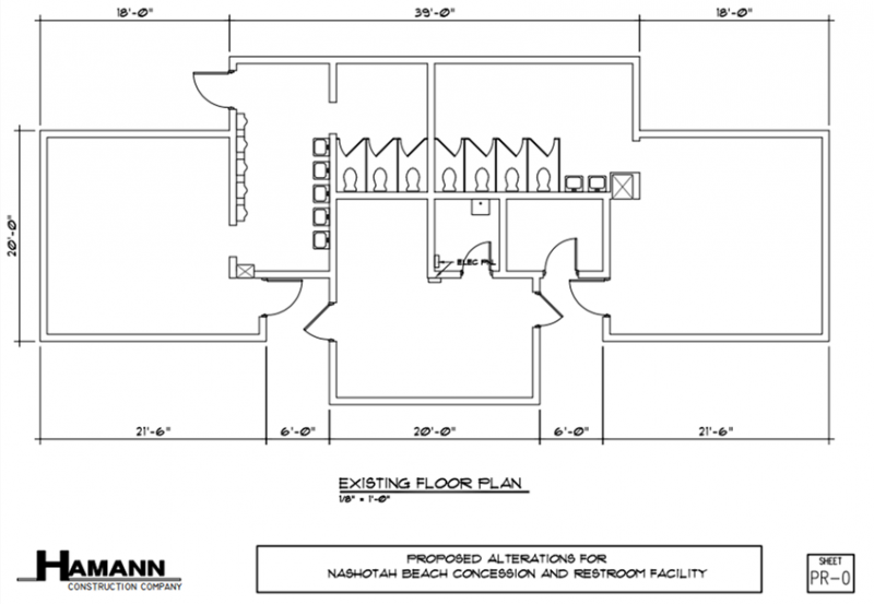
Current Beach House Floorplan

Proposed Beach House Floor plan

The current concession stand does not meet health code in several ways. These include the need for a three-compartment sink, exposed ceiling woodwork and walls, and sealing of the floors. Reconfiguration of plumbing, electrical, and counters would be needed to accomplish these improvements. The County Health Department has been flexible and collaborative in helping the city keep the stand running.
Minimum updates would also include making improvements to the space to keep it in general good repair, improve functionality for staff, and improve revenue generation potential. These include new storage racks, replacing a residential refrigerator with commercial, replacement of counters and cabinets, purchasing two commercial stand-up freezers, replacement of old point of sale technology, and installing improved lighting and electrical outlets.
Together, the health code improvements and general improvements are estimated to cost $43,000. Yes, we could only do these minimum updates.
No. The current concession stand functions more like a “snack shack” with hotdogs, frozen pizzas, pretzels, and other summer treats. If the space is renovated, the scope of the services will change some to accommodate other easily prepared foods. A renovated space would provide the opportunity for the city to lease the space to an outside vendor who may decide to serve different items. At this point in time, City staff are planning to continue operating the concession stand internally with a similar scope of service. There will be no indoor seating, no fryer, and no cooking range.
The total estimated project cost for full interior renovation is $510,636. This is an estimate put together by a local construction company and the Parks and Recreation Department. If the project proceeds, the city will be required to execute a competitive bidding process. There is no cost to do competitive bidding. The final amount could be less or more, but we feel the estimate is very close to reality.
No, definitely not. The city team has already begun submitting grant applications to support the cost of this project. We are not required to accept these grants if awarded. Funding this project effectively hinges on a grant from the State of Wisconsin for local infrastructure improvements. We have applied for a $255,318 grant from this state program. The Two Rivers Room Tax Commission has also committed a potential maximum amount of $125,000 over five years for the project. This places the current estimated city investment at $130,318. City staff will continue to pursue grants and fundraising to reduce this city investment.

In this scenario, RTC support will be received over a three-to-five-year period. This means the city will need to borrow the full amount up front and be paid back by the Room Tax Commission. This is one of the ways the Central Park West project was funded. The $125,000 RTC contribution exceeds the estimated cost for the picnic shelter improvements at $105,000. Without RTC support, even with eliminating the picnic shelter improvements, the project would cost more to taxpayers.
There is potential for additional donations and sponsorships to reduce the tax-payer investment. A fundraising campaign will be started once the City Council has provided a firm commitment to pursuing the project. These efforts could take the form of donor recognition plaques and/or naming rights to specific areas of the facility. There is much to be determined in this area, and the total additional financial commitment will be greatly affected by how much interest there is from sponsors.
No. When a full rebuild was proposed, a year-round indoor rental space was suggested, like those found at Lincoln Park in Manitowoc. This idea is no longer included in the interior renovation proposal.
No, however, there will be improvements to make the shelter more comfortable in spring and fall. The proposed idea is to have retractable roll-up screens on the sides of the picnic shelter and to add radiant electric heaters to the ceiling. The idea of garage doors was suggested but roll-up screens are more cost effective and practical. Yes, there will be some added utility costs to have the heaters running during a rental event, but this will be offset by an increased number of rentals and rental rates. The renovation will also provide those renting the picnic shelter with access to the concession stand space as a warming kitchen (only when the stand is closed for the season). See example image below of the roll-up screens.

The Two Rivers Room Tax Commission (RTC) is a local advisory body that oversees how lodging tax revenues collected from hotels, motels, and short-term rentals are used to support tourism in the City of Two Rivers. Wisconsin law restricts these funds to tourism promotion and tourism-related facilities and events, meaning they cannot be used for general city operations, beyond an initial 30% contribution to the City General Fund. The Commission is made up of primarily tourism industry representatives along with City representation.
See Wis. Stats. 66.0615 and Chapter 66.0615, at Wisconsin.Gov
Yes, RTC has committed $25,000 per year for three years to the project. The RTC has also committed to supporting two additional years at $25,000 each if the city is unsuccessful in securing a pending $50,000 grant to the Wisconsin Economic Development Corporation. This places the potential total RTC contribution at $125,000 over five years.
Yes, but this is very unlikely. The amount of room tax collected each year has been steadily increasing. (2025 did see a slight decrease because of a general slowdown in the overall economy.) There are many reasons to be optimistic that room tax will stay stable. One of those being the creation of additional lodging opportunities coming online in 2026. The Room Tax Commission has a proven track record for making this type of investment with a similar investment level for the Central Park West renovation.
Yes. RTC is legally required to support projects that increase overnight stays in the community. The concession stand and restroom are an important amenity to visitors to the community. However, to fully meet the statutory requirements for spending RTC funds, the RTC has asked the city to include improvements to the attached picnic shelter. Improving the picnic shelter into a more comfortable three-season venue creates the opportunity for increased overnight stays by attracting more and larger gatherings.
The $125,000 RTC contribution exceeds the estimated cost for the picnic shelter improvements at $105,000. Without RTC support, even with eliminating the picnic shelter improvements, the project would cost more to taxpayers.
No. A revenue bond will not be used to fund the renovation. A revenue bond was suggested as a means for funding a brand-new building. A revenue bond is a loan that would be paid off using new revenue generated by the project.
Yes. The current concession stand generates around $10,000 in net revenue per year after covering all seasonal staffing, supplies, and full-time staff time for coordination. This revenue is used to help cover the cost of July 4th Fireworks, Thursday Concerts in the Park, and Bands on the Beach. These special events are fully funded through the concession stand, sponsorships, and donations.
Contact Information
Customer Service:
1520 17th St.
Two Rivers, WI 54241
Phone: 920.793.5592
Email: ashhag@two-rivers.org